


















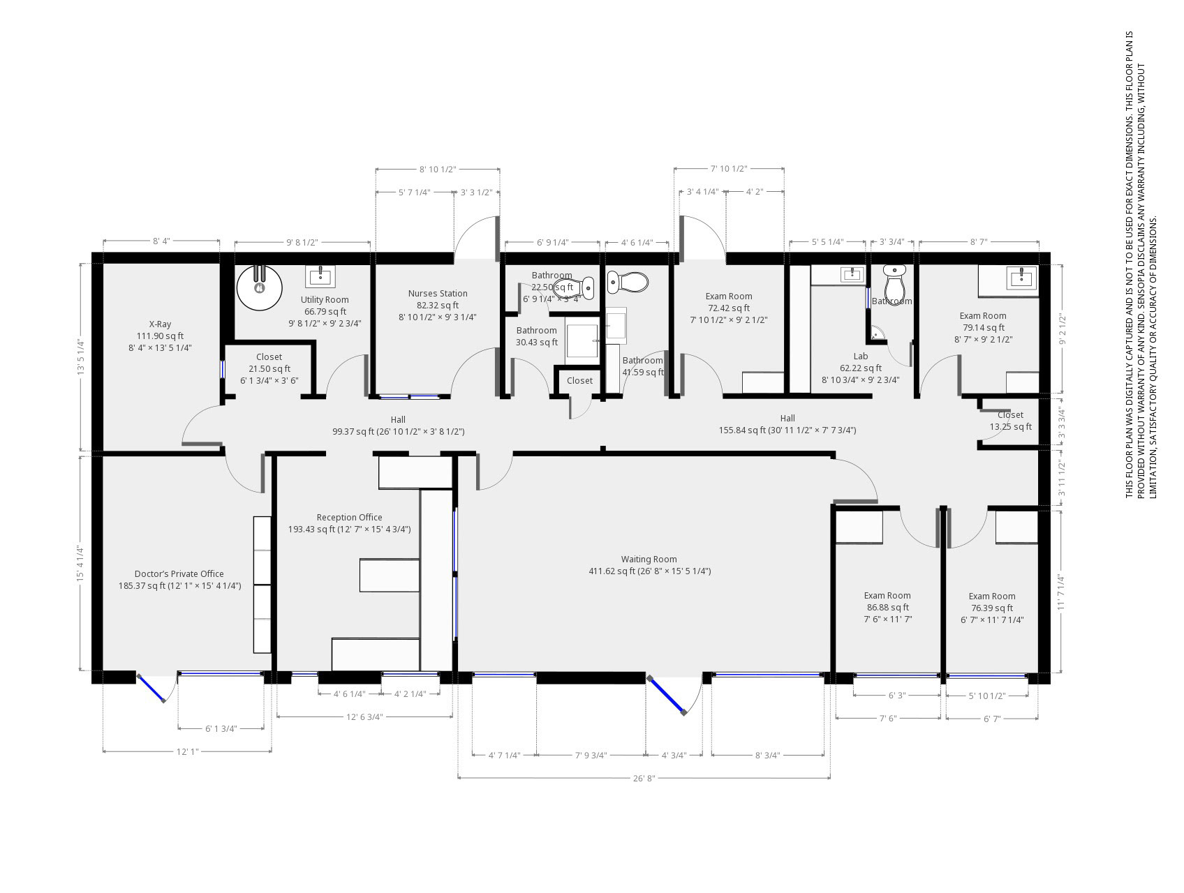
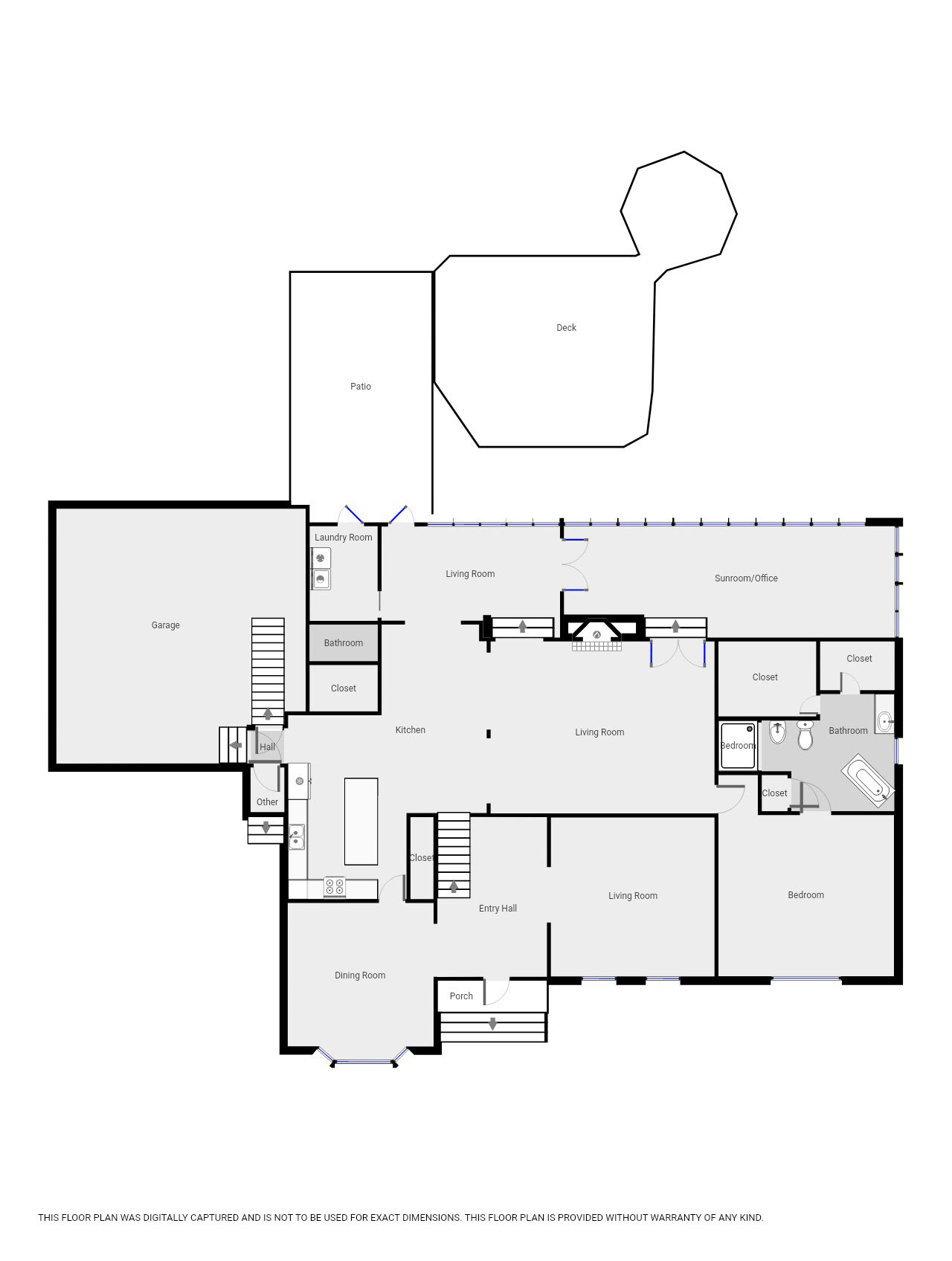
Floor plans are a great option for a property that has potential or maybe the seller just can't get the interior ready for photos yet. The property is digitally scanned and can be staged with furniture. Multiple floor plans are given with simple and detailed measurements.